Back

Revive

Vancouver, South Cambie

  • Pre Sales
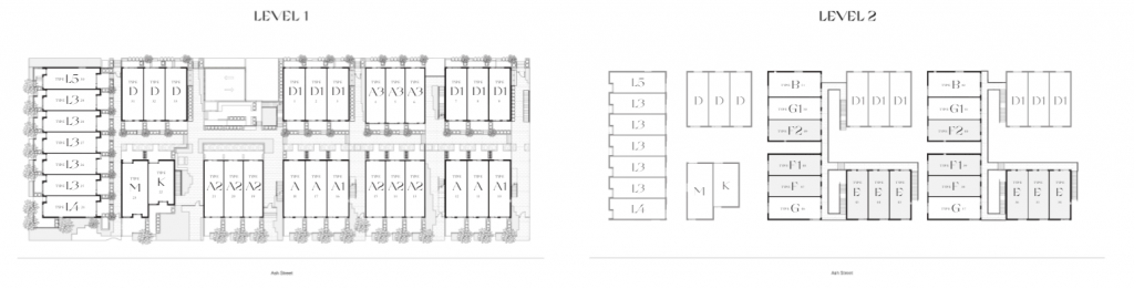
  • Address: Wellside Collection Community | 6922 Ash St, Vancouver
  • Bed: 1 - 4
  • Number of Unit: 69
  • Developer: Belford Properties
  • Year Built: Est. Compl. Fall/Winter 2023
  • Building Name: Revive
  • Amenities:
    Bike Washing Area Underground Parking Bicycle Storage Repair Room
  • Features:

    Exterior

    • Beautifully designed by award-winning SHAPE Architecture
    • Artfully landscaped courtyard with stunning water features
    • Private patios and balconies are vital for all homes
    • Private roof-top terrace for select homes
    • Subtle details with textured stone cladding and painted stucco soffits provides old world warmth to the community
    • Expansive skylights and windows allowing for natural energy to flow through the homes

    Refined Interiors

    • Award-winning House of Bohn Designs
    • Two refreshing color palettes to select from
    • 9’ Ceilings on all floors (single or multi-level homes) • Custom cabinetry, millwork and integrated appliances elevate the entire culinary experience
    • Custom closets to maximize storage
    • Rollerblinds on windows for privacy, with blackout fabric on bedroom windows
    • Front loading Blomberg or LG washer and dryer

    Spa-Like Bathrooms

    • Polished Caesarstone countertops
    • Fixtures in champagne bronze finishing
    • Large format porcelain tiles on floors and tub surrounds
    • German Duravit sinks and toilets with soft-close lid
    • Ensuites:
    • Floating vanities with deep drawers and LED undercabinet lighting
    • Frameless glass shower enclosure complete with hand-shower and oversized showerhead
    • LED mirrored medicine cabinets for additional storage

    Luxurious Kitchens

    • Premium Fisher Paykel appliance package including:
    • 30” Paneled refrigerator with internal water dispenser and icemaker (24” in 1-bedroom homes)
    • 30” 5-burner gas cooktop (24” 4-burner in 1-bedroom homes)
    • Powerful integrated hood fan
    • Built-in 30” oven (24” in 1-bedroom homes)
    • Built-in combination steam oven in 2+-bedroom homes
    • Integrated double dishdrawer
    • Polished Ceasarstone Countertops and Backsplash • Design forward woodgrain cabinetry with soft-close mechanism
    • Islands with stunning tambour paneling in 2+ bedroom homes
    • Pullout pantries in select homes • Smart Storage Solutions placed within the select cabinets for organization and easy access
    • Single or Double bowl Blanco SILGRANIT under-mount sink (heat, scratch and stain resistant)
    • Luxurious Brizo pull-down faucet and filtered water faucet in luxe gold finishing
    • Recessed pot lighting accompanied with LED under-cabinet puck lighting

    Convenience

    • Private garage parking for select homes • Secure Underground Parkade with Video Surveillance and Key Fob Access
    • Bicycle storage locker in the underground parkade
    • Bike wash and repair room • WiFi connectivity and Internet access, CAT5e wiring and multiple pre-wired connections for high-speed internet and cable

Introducing a presales project in Vancouver: Revive is a new townhouse development by Belford Properties, located at 6922 Ash St. Contains 69 units. Sizes range from 506 to 2056 square feet. There is a singular beauty in pursuing a balanced life, and the balance of each and every day begins and ends with home

 

SEARCH BY AREAS

Easily find properties for sale all around Vancouver's hottest spots! You are just a few click away from finding the perfect home for you in one of the most beautiful cities in the world. Start your new home journey now!